Skip to content
Kompetenzen
Immobilienberatung
Nachhaltigkeitsberatung
Machbarkeitsstudien
Projektplanung
Visualisierung
Projekte
Alle
Neubau
Umbau
Über uns
Profil
Team
Büro
Karriere
Kontakt
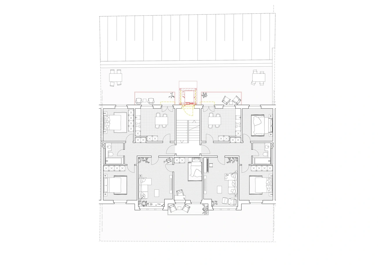
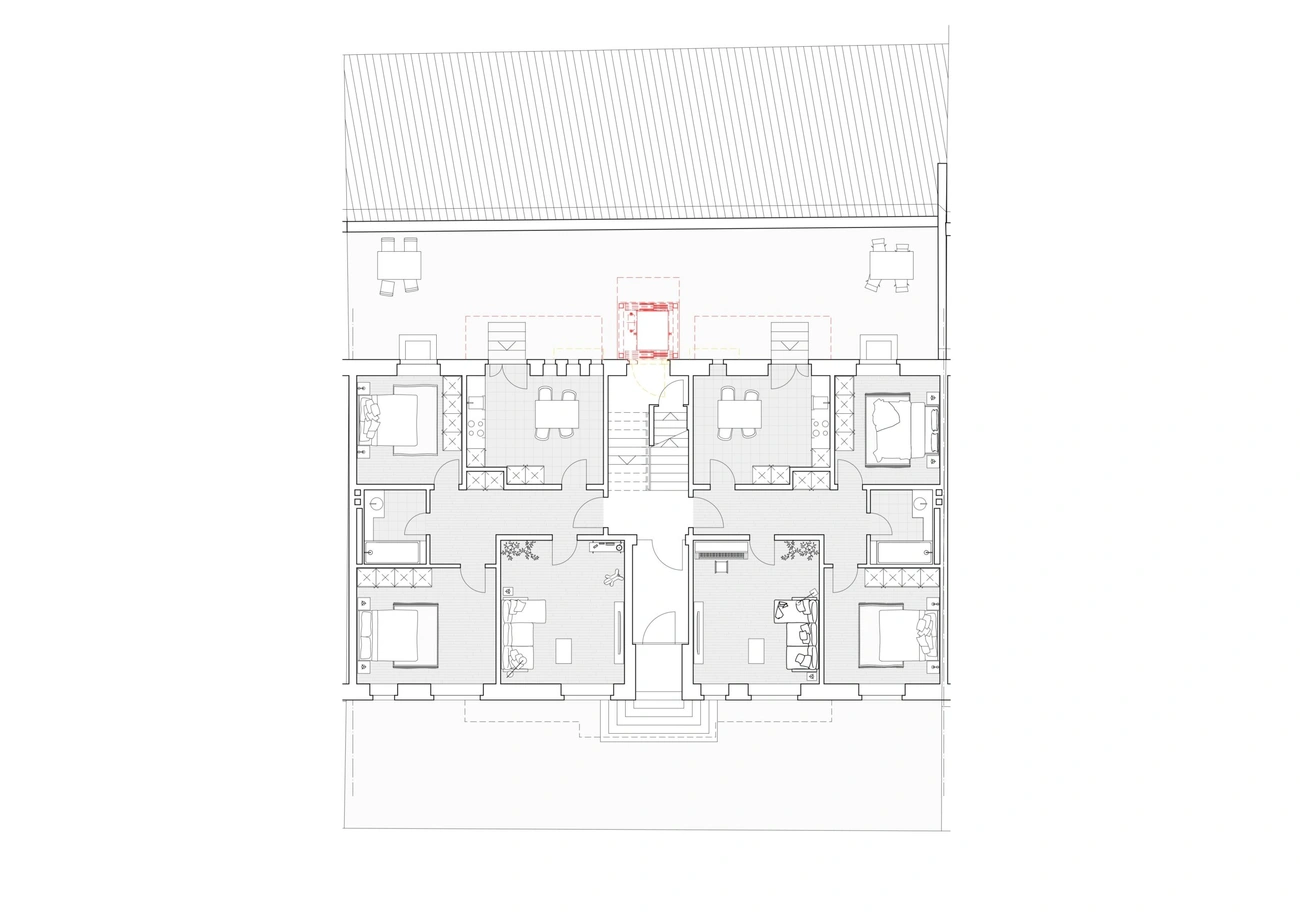
Anbau MFH Leibstadt
Details zum Projekt
Dossier herunterladen
Baujahr:
2021
Auftrag:
Anbau
Typ:
Wohnen
Klasse:
MFH
Lage/Adresse:
St. Gallen
Grösse:
100 m2
Baukosten:
400 000 .-
Auftragsart:
Direktauftrag
Zone:
W4
Aktuelle Sprache
Deutsch
Alle Sprachen
Deutsch
English
Français
Italiano