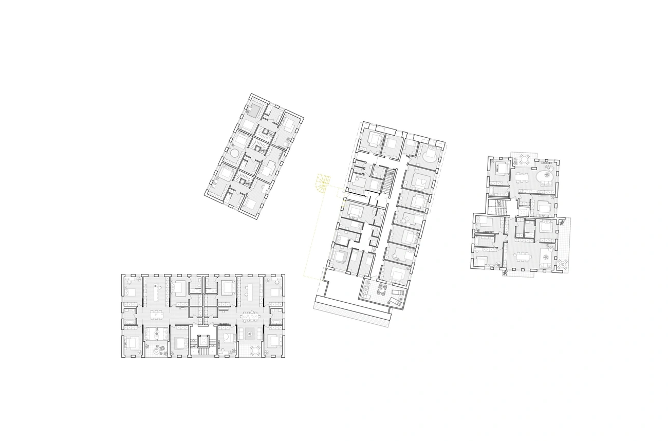
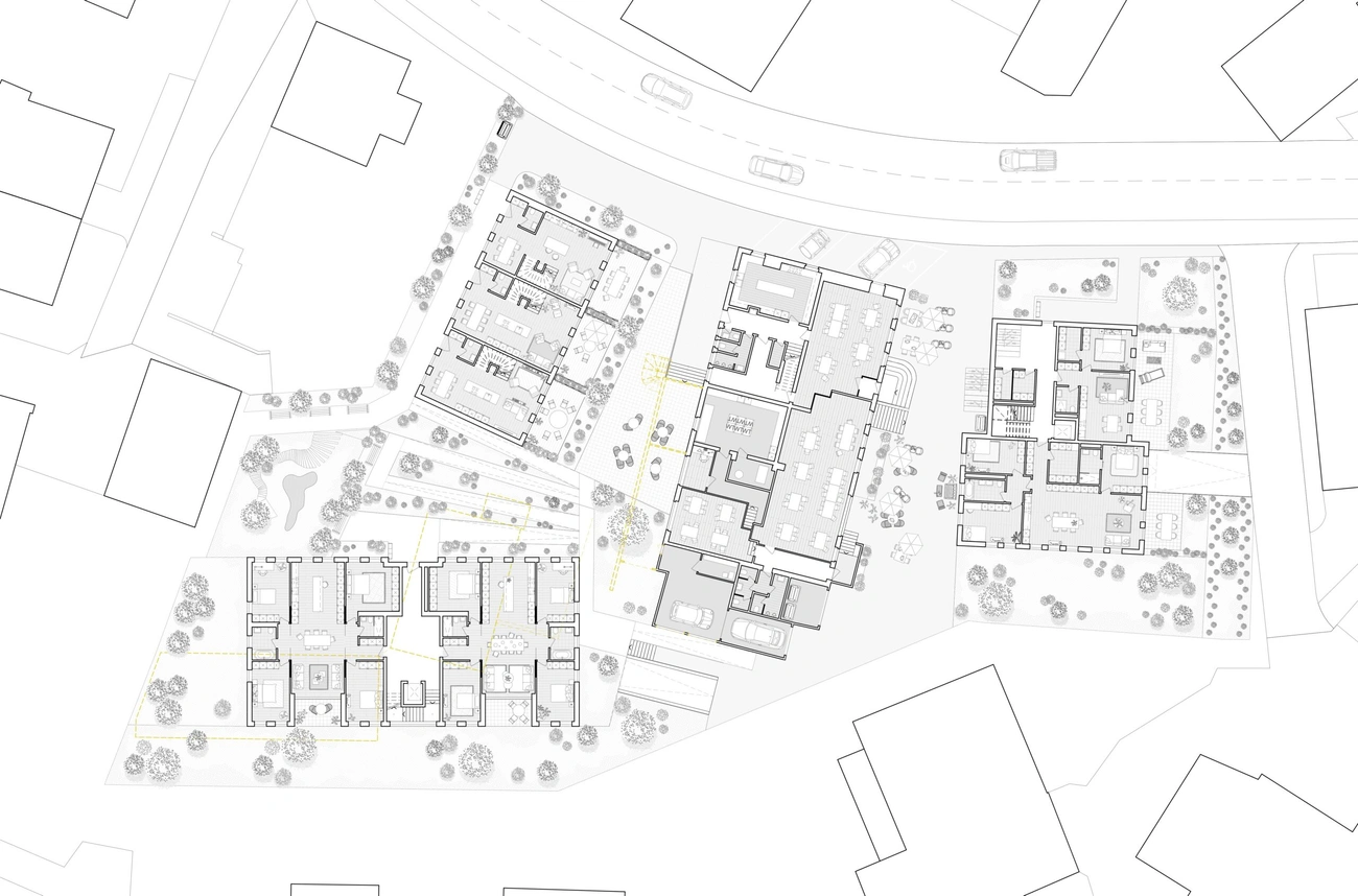
Die Neubauten in der Bachserstrasse in Steinmaur umfassen zwei Mehrfamilienhäuser und drei Reiheneinfamilienhäuser. Im Total weisst die Überbauung 15 Wohneinheiten auf.
Die zweigeschossigen Holzbauten bilden trotz unterschiedlichem Gebäudecharakter eine visuelle Einheit. Gefasst wird die Überbauung durch gemeinsame Ruhe und Grünflächen im Kern des Gebäudeensembles. So verbinden sich Wohngebäude und Hotel Kreuz zu einem Begegnungsort für Anwohner und Nachbarschaft.
Das Ensemble greift die Farben der Kernzone auf. Die Gebäude sind mit Holz und Putz in sanften braun und beige Tönen verkleidet und fügen sich harmonisch in das bestehende Ortsbild ein. Alle Gebäude weissen das gleiche Farbschema bei unterschiedlicher Fassadengestaltung auf.
Deutsch
Deutsch
English
Français
Italiano