Skip to content
Kompetenzen
Immobilienberatung
Nachhaltigkeitsberatung
Machbarkeitsstudien
Projektplanung
Visualisierung
Projekte
Alle
Neubau
Umbau
Über uns
Profil
Team
Büro
Karriere
Kontakt
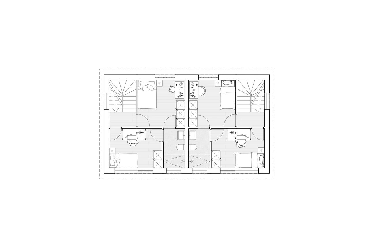
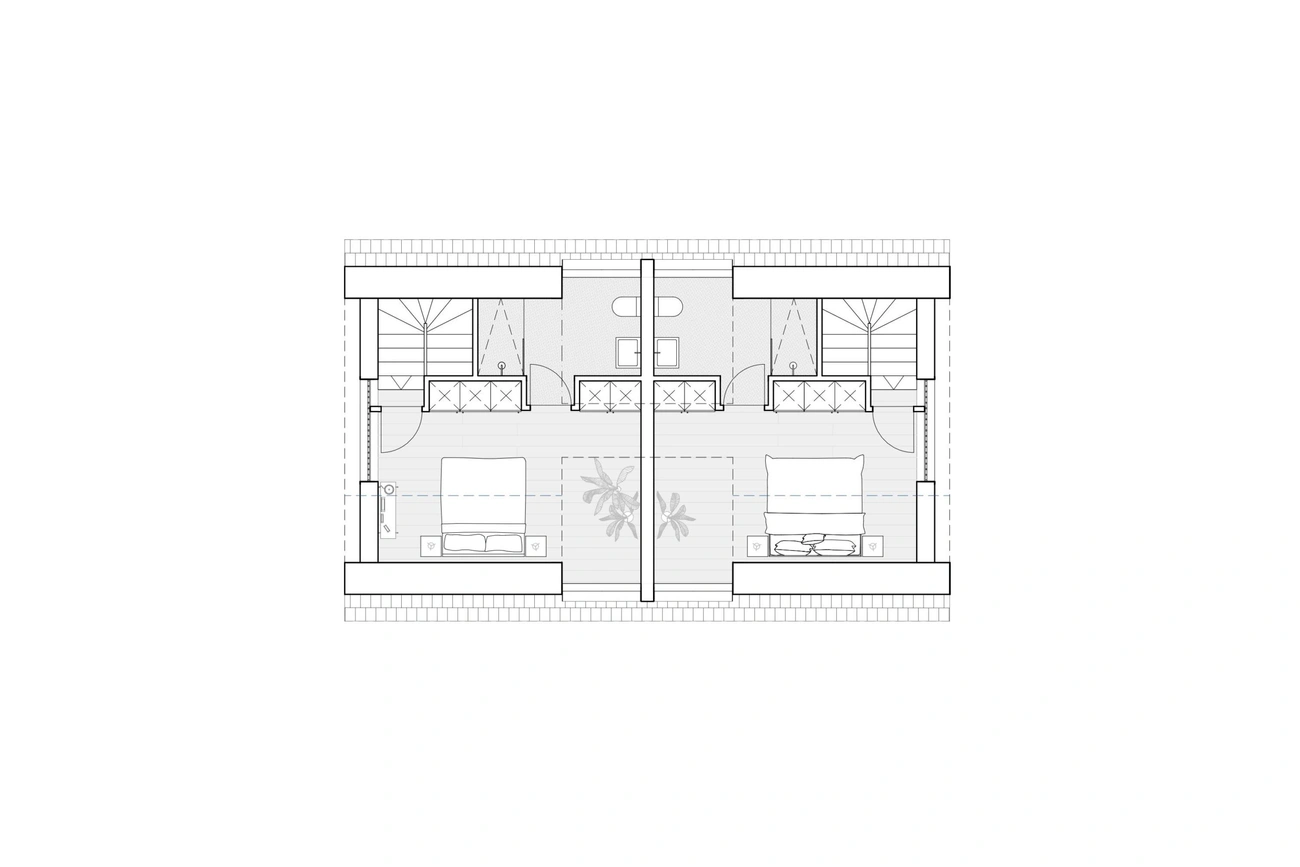
Neubau EFH Fällanden
Details zum Projekt
Dossier herunterladen
Baujahr:
2021
Auftrag:
Neubau
Typ:
Wohnen
Klasse:
EFH
Lage/Adresse:
Fällanden
Grösse:
250 m2
Baukosten:
1 200 000 .-
Auftragsart:
Direktauftrag
Zone:
Kernzone
Aktuelle Sprache
Deutsch
Alle Sprachen
Deutsch
English
Français
Italiano