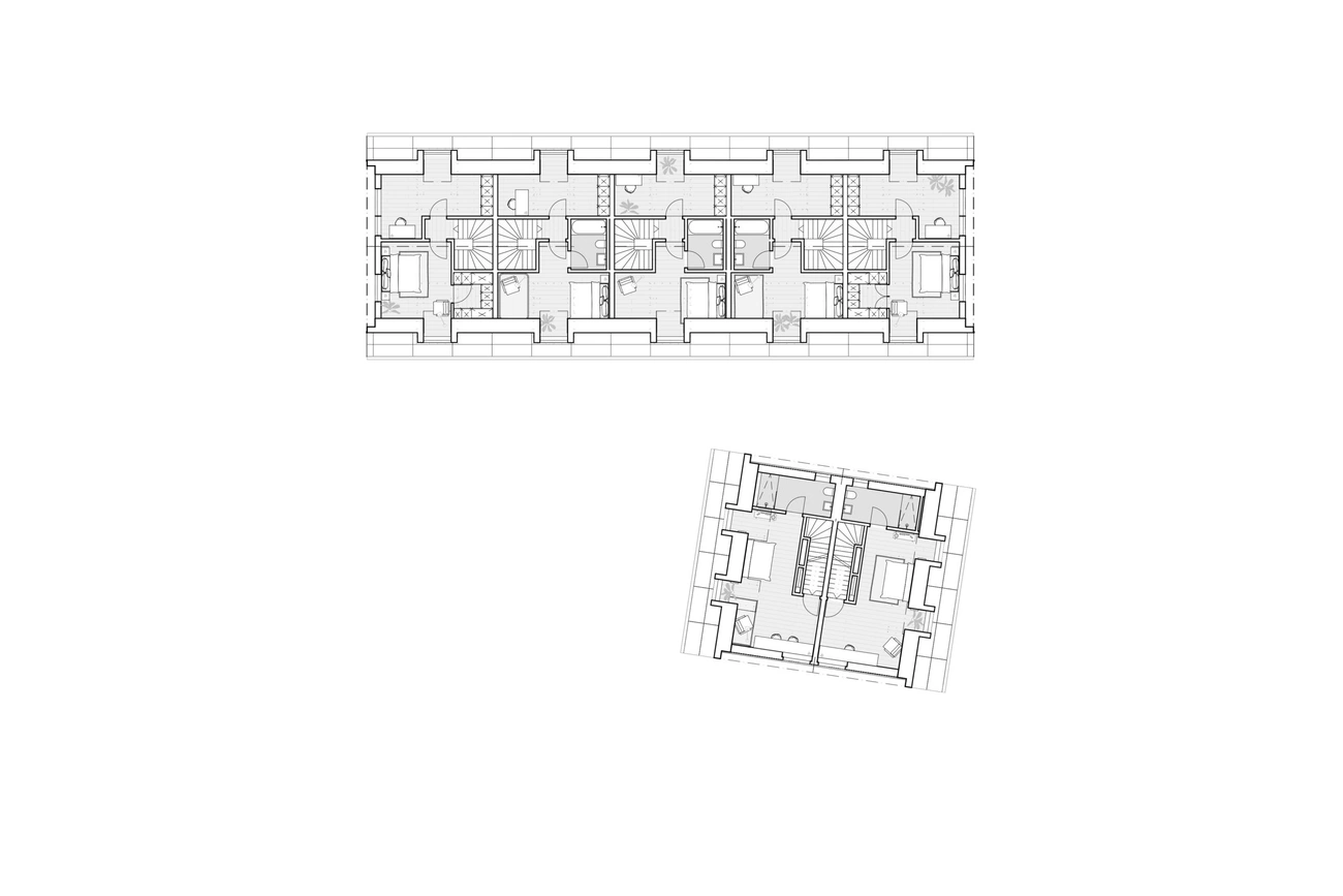
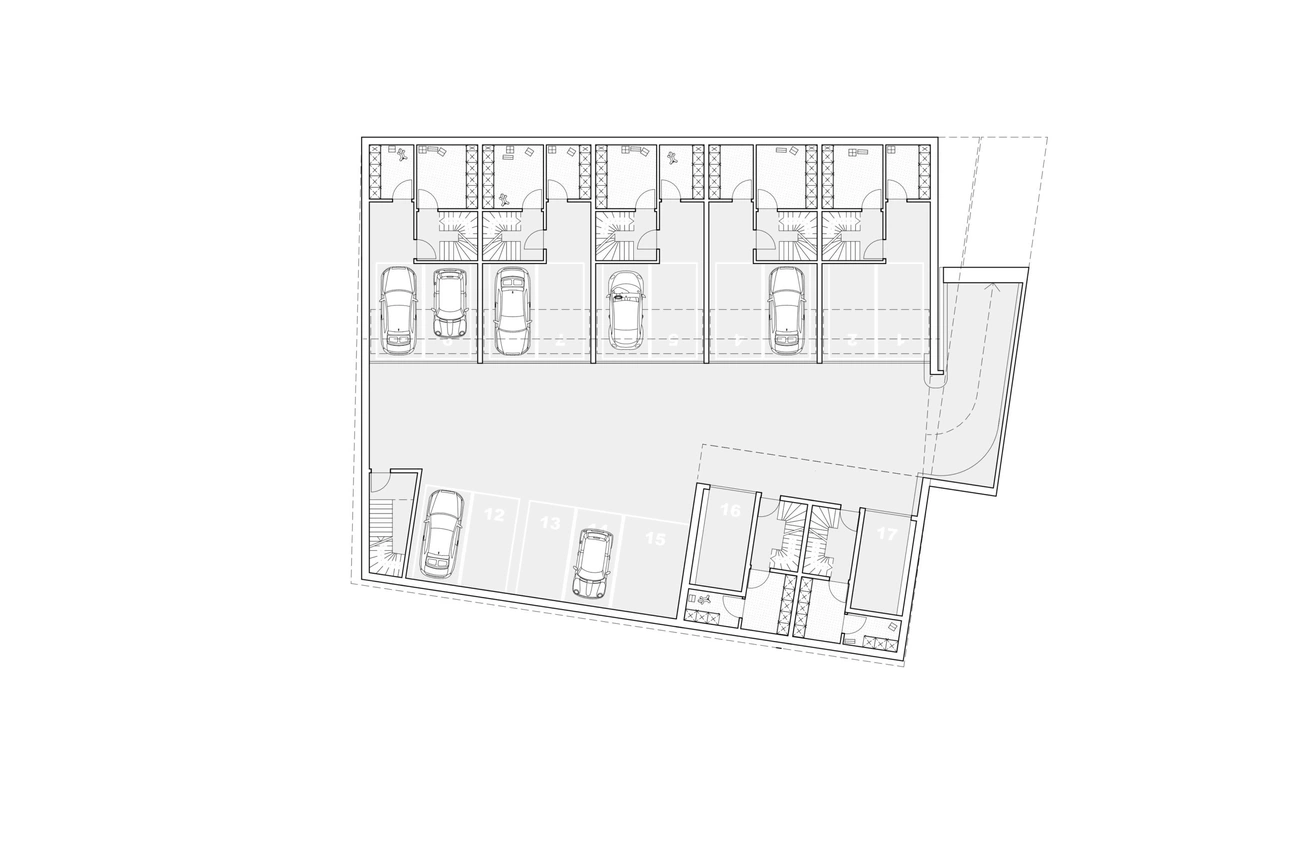
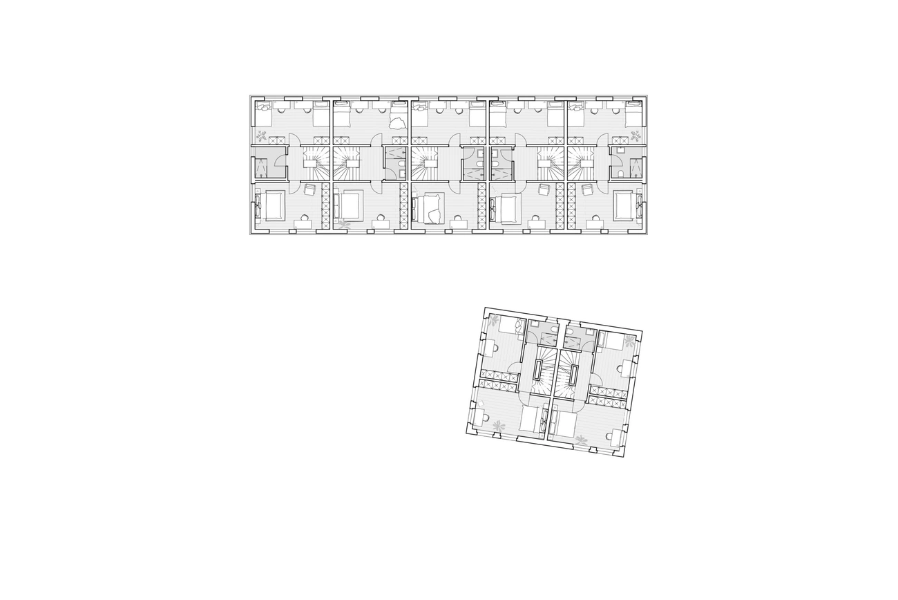
Sieben Reihenhäuser in der Kernzone vom kleinen Dorf von Oberneunforn, verteilt in zwei zweigeschossige Gebäude.
Die Intervention verfolgt die Nachhaltigkeit der Minergie-P Zertifizierung des Komplexes. Um diese Zertifizierung zu erreichen, eine der Dinge die das Projekt verwendet sind, Solarplatten auf dem Dach.
Das Konzept ist die Kreation von einem Innenhof der eine Verbindung zwischen den sieben Reihenhäuser erschafft. Somit haben die Nachbarn einen Gemeinschaft-Platz wo sie sich treffen können.
Der Neubau sucht die Einigkeit mit dem Dorf, durch die Nutzung der Materialien wie Putz und Holz, so wie die Gebäude in der Umgebung.
Deutsch
Deutsch
English
Français
Italiano