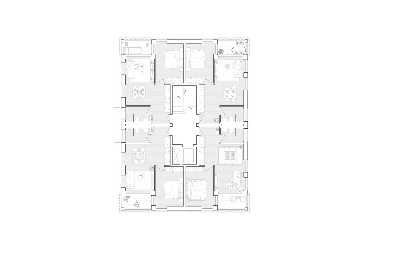
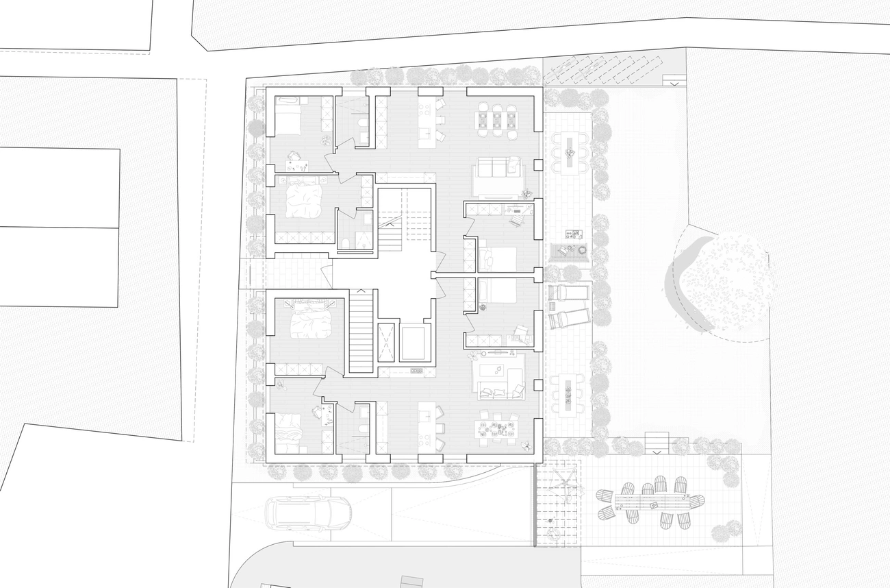
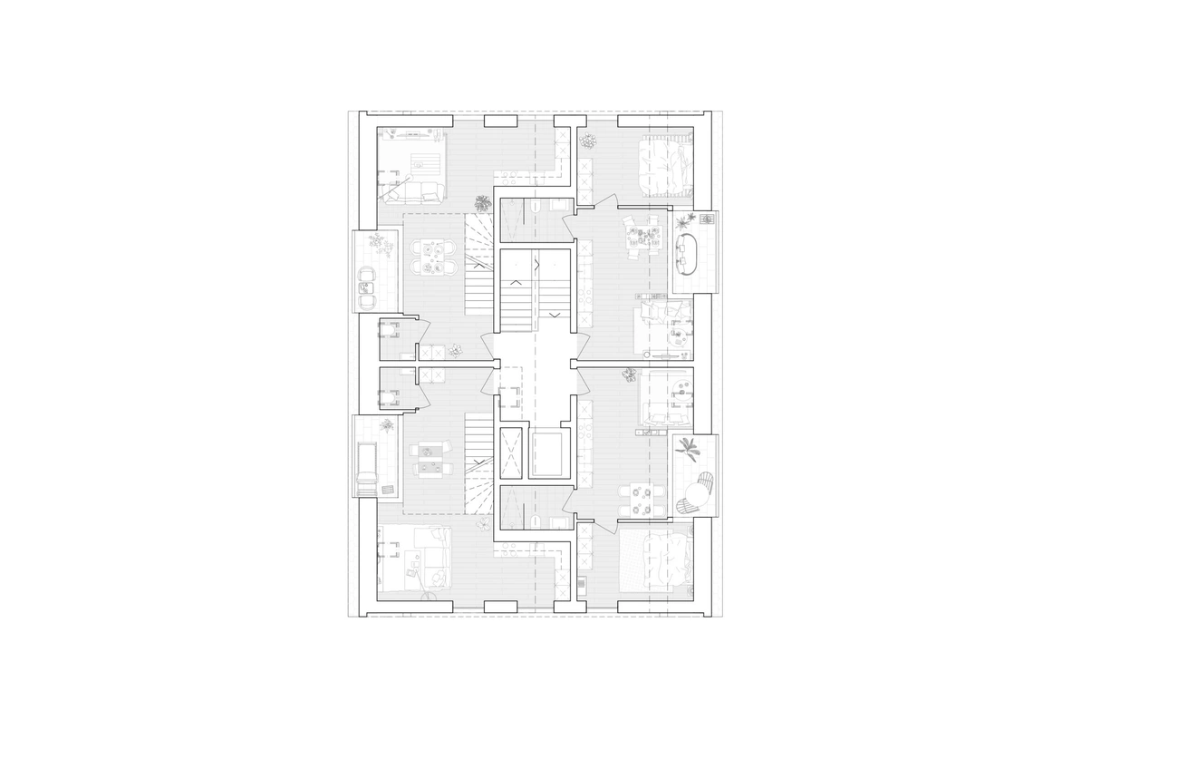
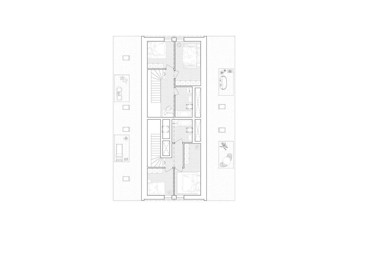
Der Neubau in der Kernzone von Fällanden umfasst ein Mehrfamilienhaus mit reiner Wohnnutzung. Das Gebäude ist in sechs Geschossen verteilt, davon vier oberirdisch und zwei unterirdisch.
Der Wohnungsmix der zehn Wohneinheiten ist vielfältig, mit Wohneinheiten von 2.5 bis 4.5 Zimmer. Dies erlaubt eine Vielzahl von Familientopologien. Alle Wohnungen verfügen über Aussenbereich, der eine Verbindung zwischen Innen und Aussen bietet.
Die Gestaltung des Neubaus spiegelt die Identität der Kernzone wider, jedoch mit einem modernen Ansatz. Die verwendeten Materialen und Farben sind orttypisch. Die braune Farbe und den Verputz ähnelt dem Holz der historischen Fachwerkhäuser.
Deutsch
Deutsch
English
Français
Italiano