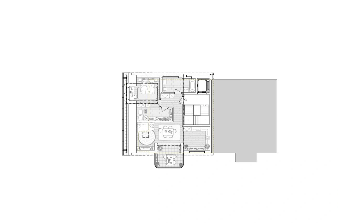
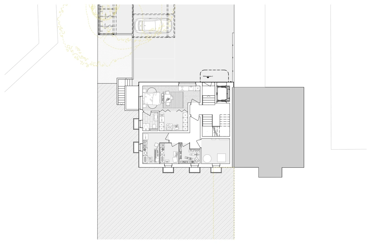
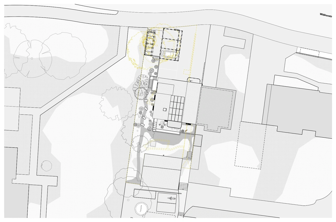
Das bestehende Gebäude besteht aus zwei Teilen, die auf zwei angrenzenden Grundstücken neben der Kantonsstraße liegen. Eine Hälfte wird abgerissen, um ein fünfstöckiges Mehrfamilienhaus zu errichten. Das neue Gebäude wird Erd- und Obergeschosswohnungen mit 4.5 Zimmern beherbergen, ein Studio im Untergeschoss und eine 2.5-Zimmer-Wohnung im Dachgeschoss.
Die Rückseite des Gebäudes ist nach Süden ausgerichtet und bietet einen Blick auf die ruhige Hangseite des Grundstücks. Dies ermöglicht geräumige Balkone und eine Außenterrasse im Erdgeschoss und schützt vor Lärmbelästigung von der Kantonsstraße. Die Terrassenwände dienen auch als Tragstruktur für die darüberliegende flache Grünfläche.
Die Materialien und Farbpalette des neuen Gebäudes werden an das bestehende Gebäude angepasst, um einen einheitlichen Eindruck der beiden Gebäudeteile zu erzielen. Während die Vorderseite des Entwurfs den Regeln des bestehenden Teils folgt, wird die südliche (hintere) Fassade durch Symmetrie geprägt, was einen stärkeren individuellen Charakter eines separaten Eigentums verleiht.
Deutsch
Deutsch
English
Français
Italiano