Die Liegenschaften befinden sich an der Oberriedstrasse 3-11 in Thörishaus in der Gemeinde Köniz im Kanton Bern.
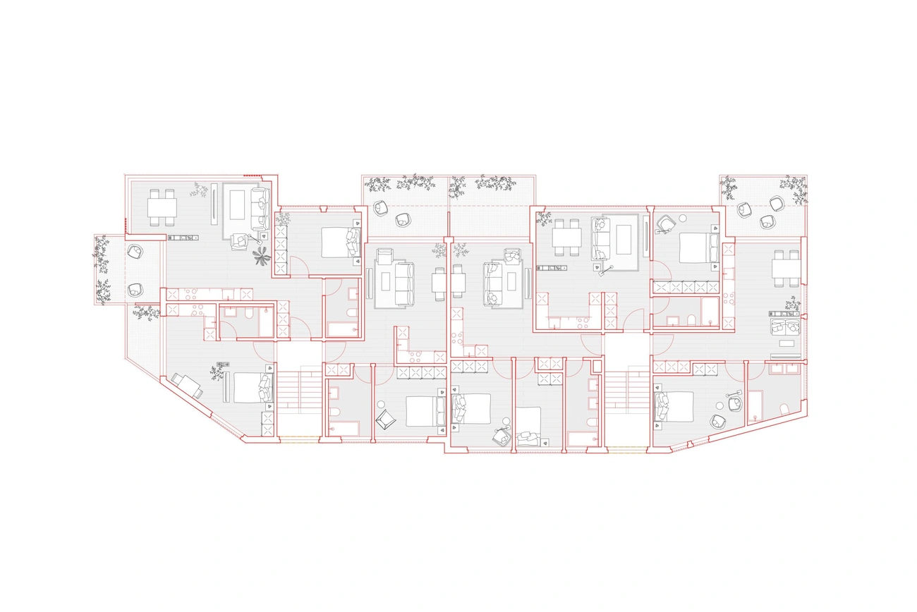
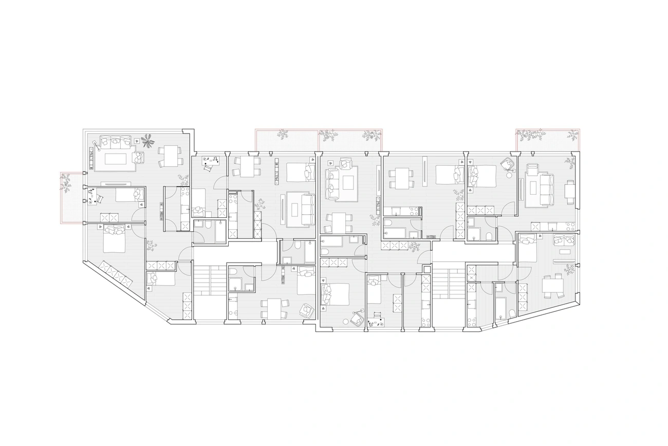
Die bestehenden Mehrfamilienhäuser der Häuser Nummer 3+5 und 9+11 werden um ein Geschoss erweitert, die offenen Untergeschosse, welche talseitig oberirdisch und offen sind, werden teilweise geschlossen und mit Wohnungen oder Kellerräumen versehen. Zusätzlich wird ein freistehender Liftturm, welcher den Zugangsweg zu allen Hauseingängen erschliesst.
Die Aufstockungen und die Balkongeländer, welche im Bestand ersetzt werden, werden in Holz erstellt. Die bestehenden Fassaden werden neu gestrichen.
Der Liftturm wird in Sichtbeton belassen.
Deutsch
Deutsch
English
Français
Italiano