Skip to content
Kompetenzen
Immobilienberatung
Nachhaltigkeitsberatung
Machbarkeitsstudien
Projektplanung
Visualisierung
Projekte
Alle
Neubau
Umbau
Über uns
Profil
Team
Büro
Karriere
Kontakt
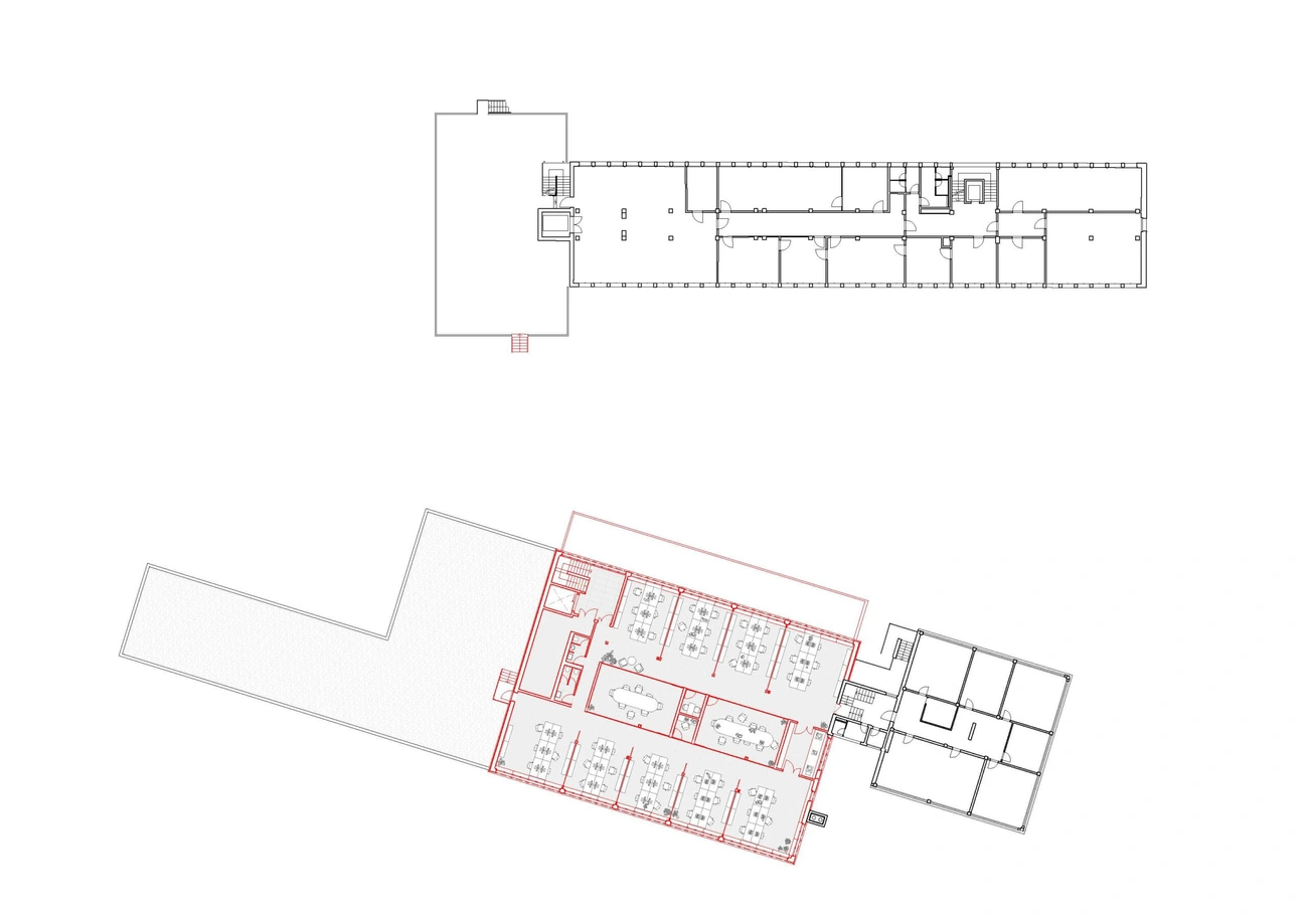
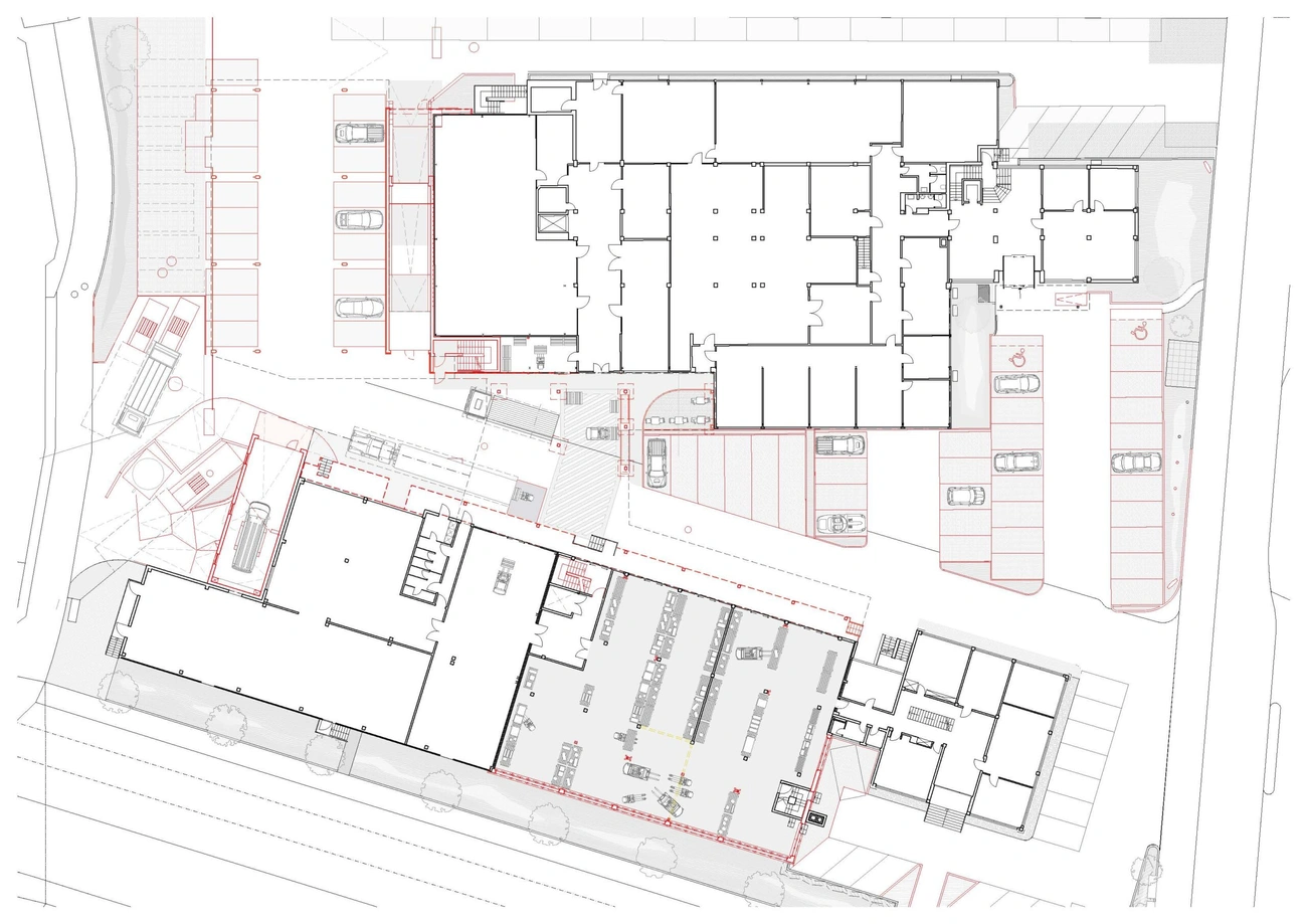
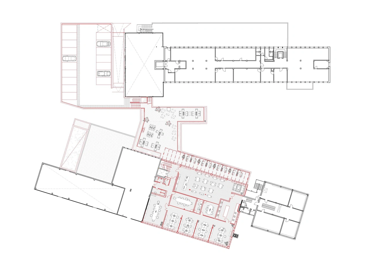
Aufstockung Gewerbe Dübendorf
Details zum Projekt
Baujahr:
2024
Auftrag:
Umbau / Aufstockung
Typ:
Gewerbe und Parkhaus
Klasse:
Gewerbe
Lage/Adresse:
Dürbendorf
Grösse:
3 700 m2
Baukosten:
14 000 000 .-
Auftragsart:
Direktauftrag
Zone:
IG 2
Aktuelle Sprache
Deutsch
Alle Sprachen
Deutsch
English
Français
Italiano