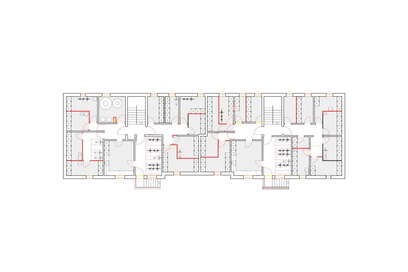
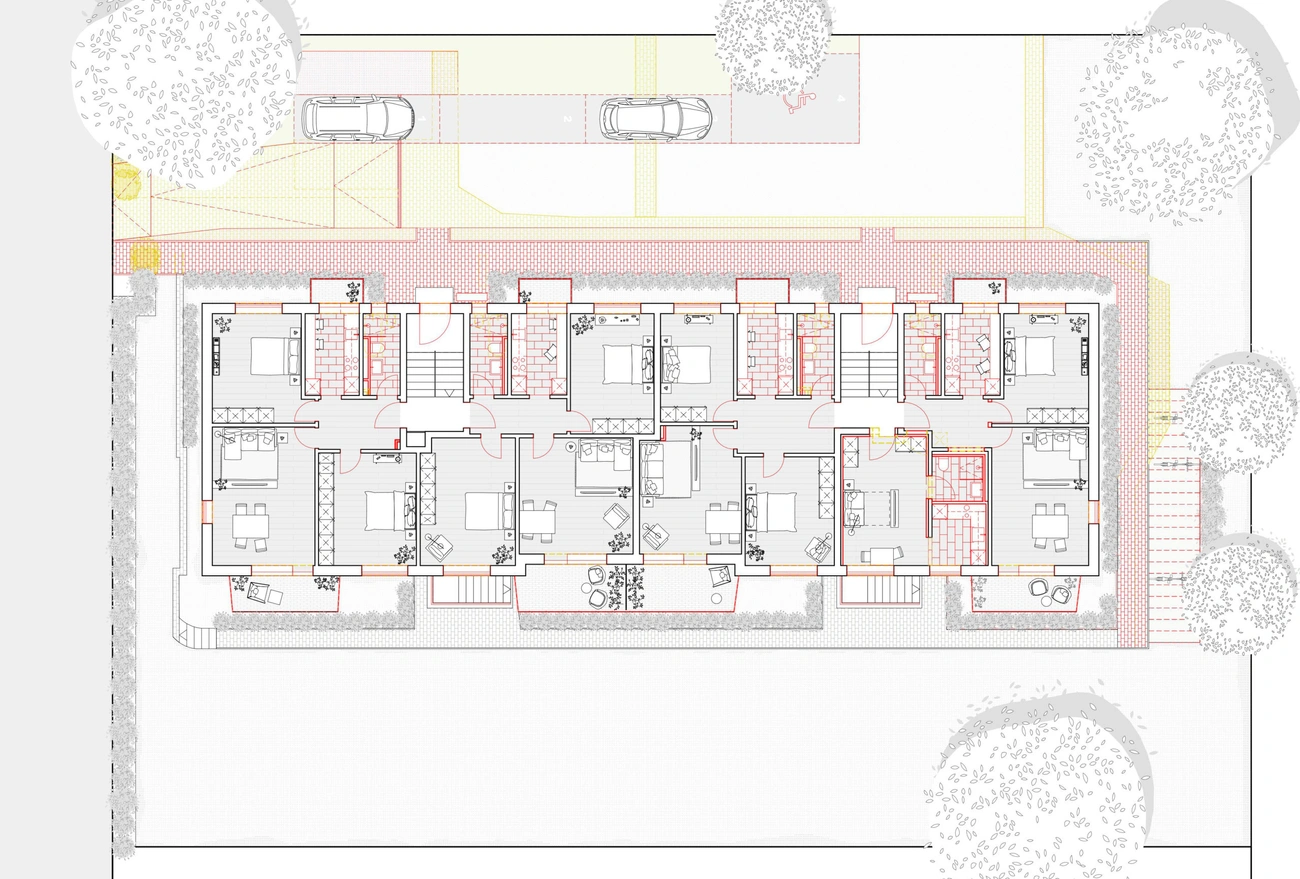
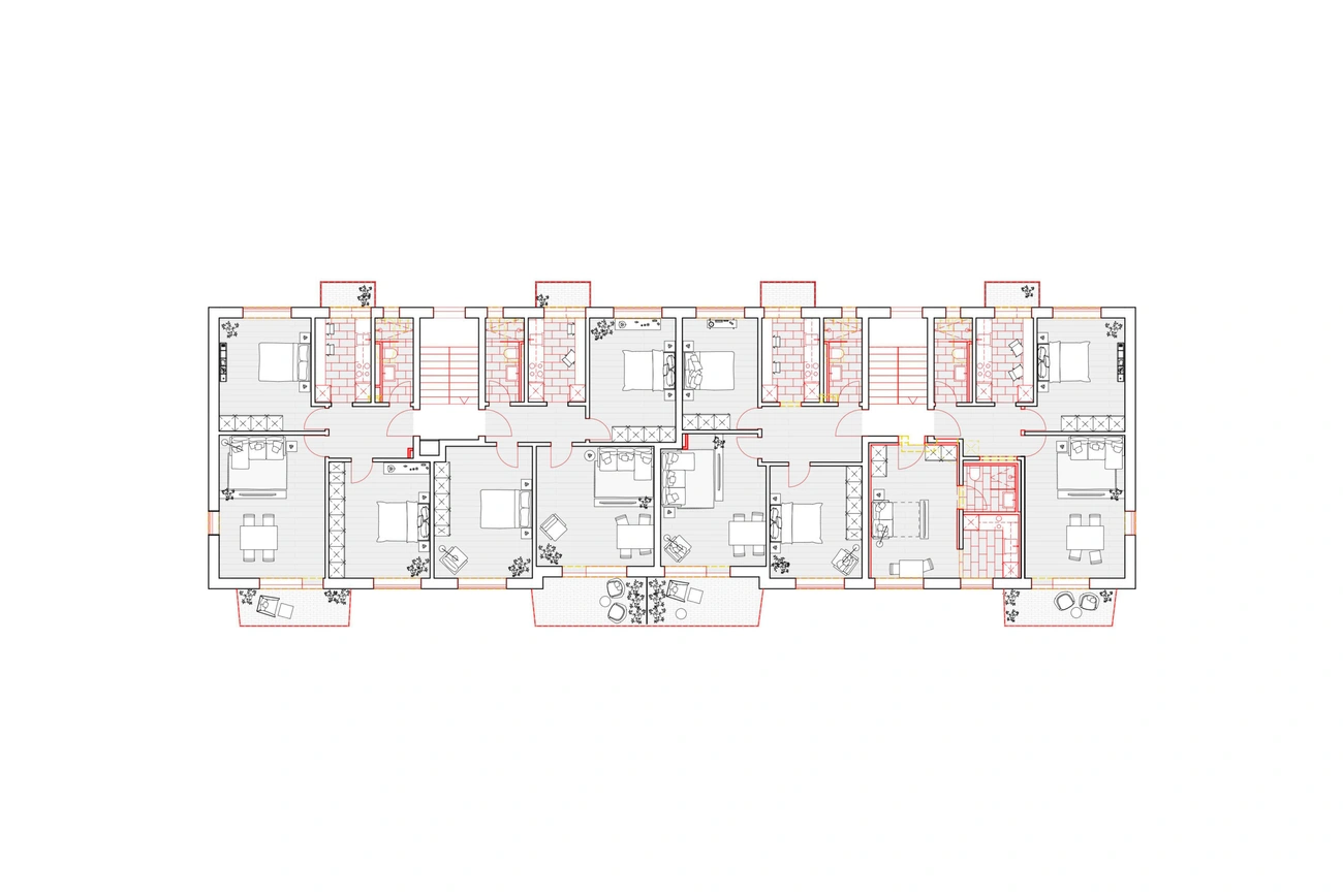
Aufstockung MFH Bern

Details zum Projekt

Aktuelle Sprache

Deutsch

Alle Sprachen

Deutsch

English

Français

Italiano