Skip to content
Kompetenzen
Immobilienberatung
Nachhaltigkeitsberatung
Machbarkeitsstudien
Projektplanung
Visualisierung
Projekte
Alle
Neubau
Umbau
Über uns
Profil
Team
Büro
Karriere
Kontakt
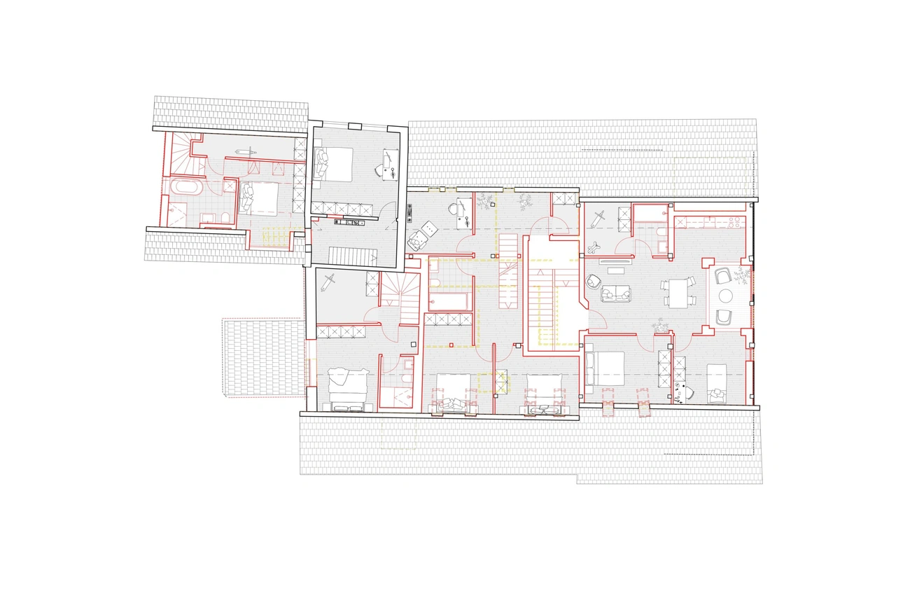
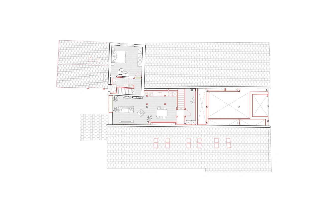
Dachausbau MFH Rheinfelden
Details zum Projekt
Dossier herunterladen
Baujahr:
2022
Auftrag:
Umbau / Dachausbau
Typ:
Wohnen
Klasse:
MFH
Lage/Adresse:
Glattbrugg
Grösse:
1 400 m2
Baukosten:
2 000 000 .-
Auftragsart:
Direktauftrag
Zone:
Kernzone
Aktuelle Sprache
Deutsch
Alle Sprachen
Deutsch
English
Français
Italiano