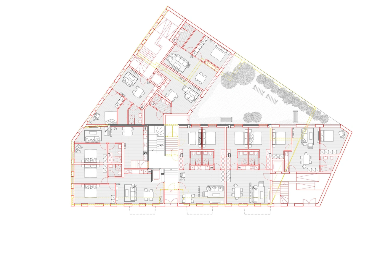
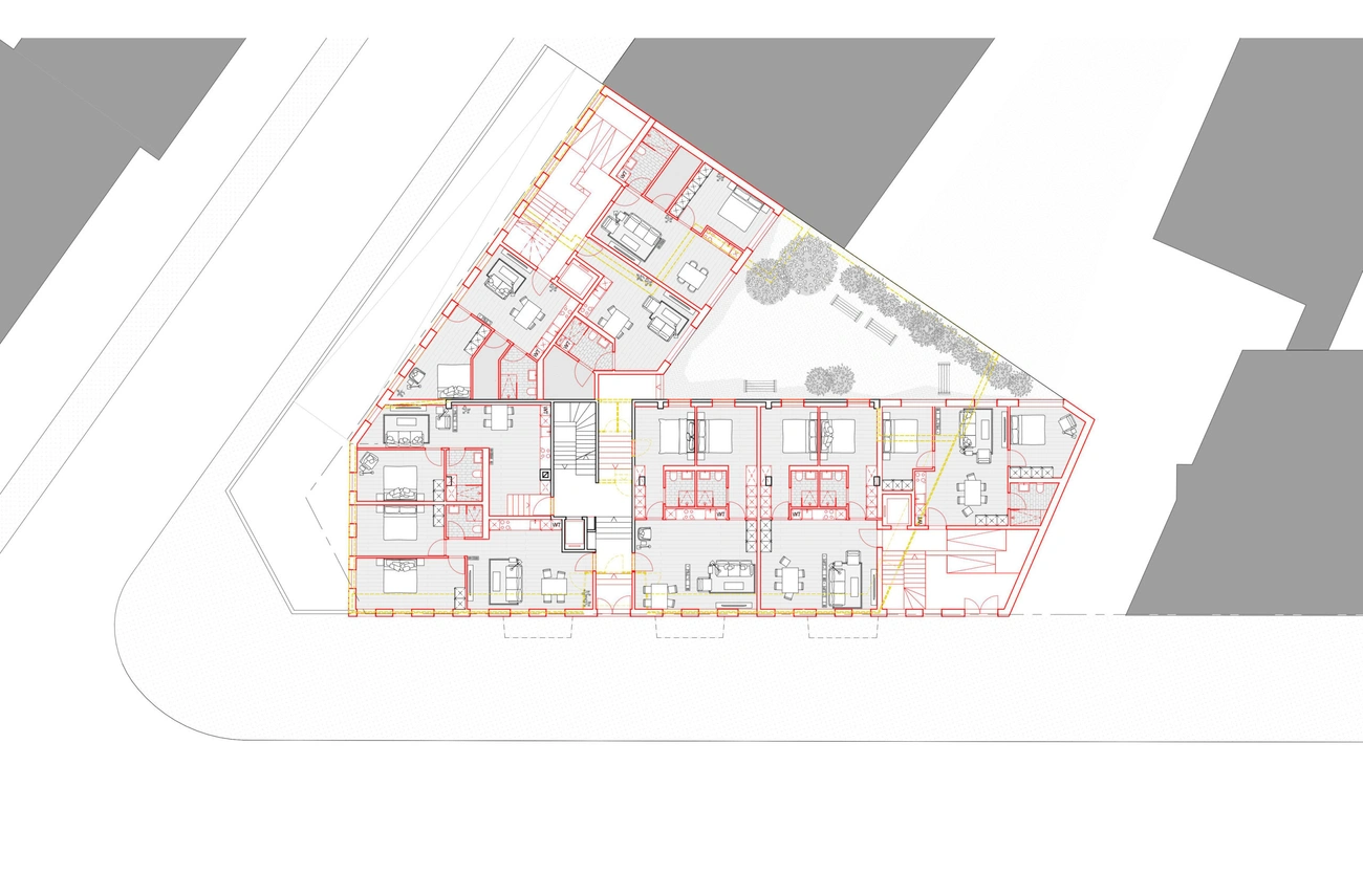
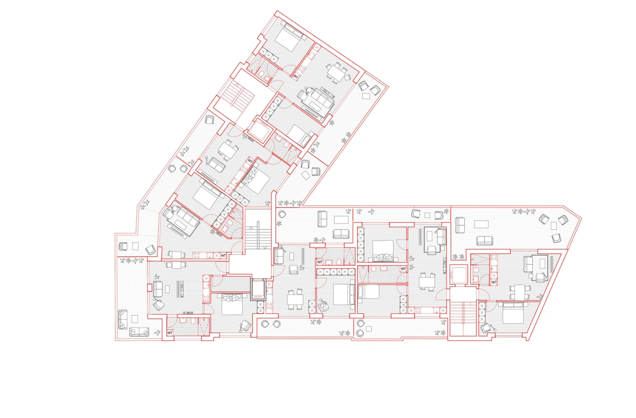
Das geplante Gebäude besteht aus drei kombinierten Volumen: zwei neuen Anbauten, die an ein bestehendes Gebäude angeschlossen sind. Damit wird der Bestand, 20 Wohneinheiten plus Gewerbe, in einen neuen Gebäudekomplex mit 62 Wohneinheiten plus Tiefgarage umgewandelt.
Deutsch
Deutsch
English
Français
Italiano