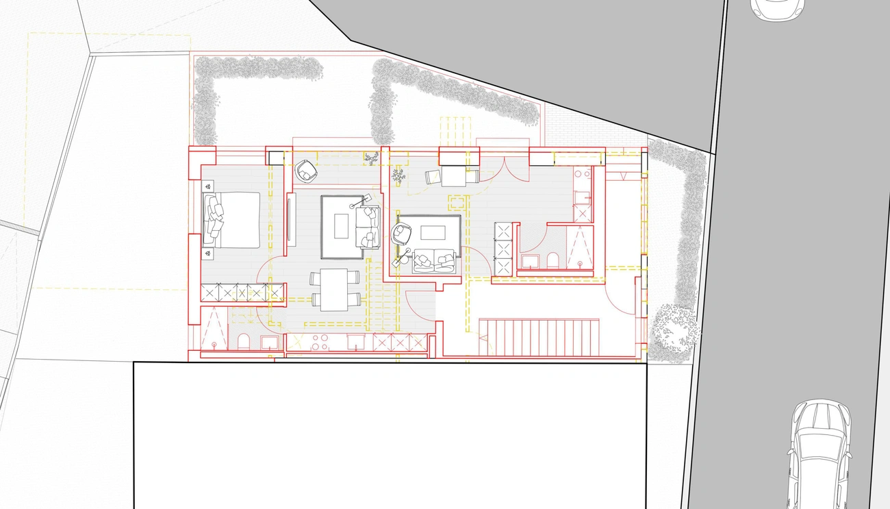
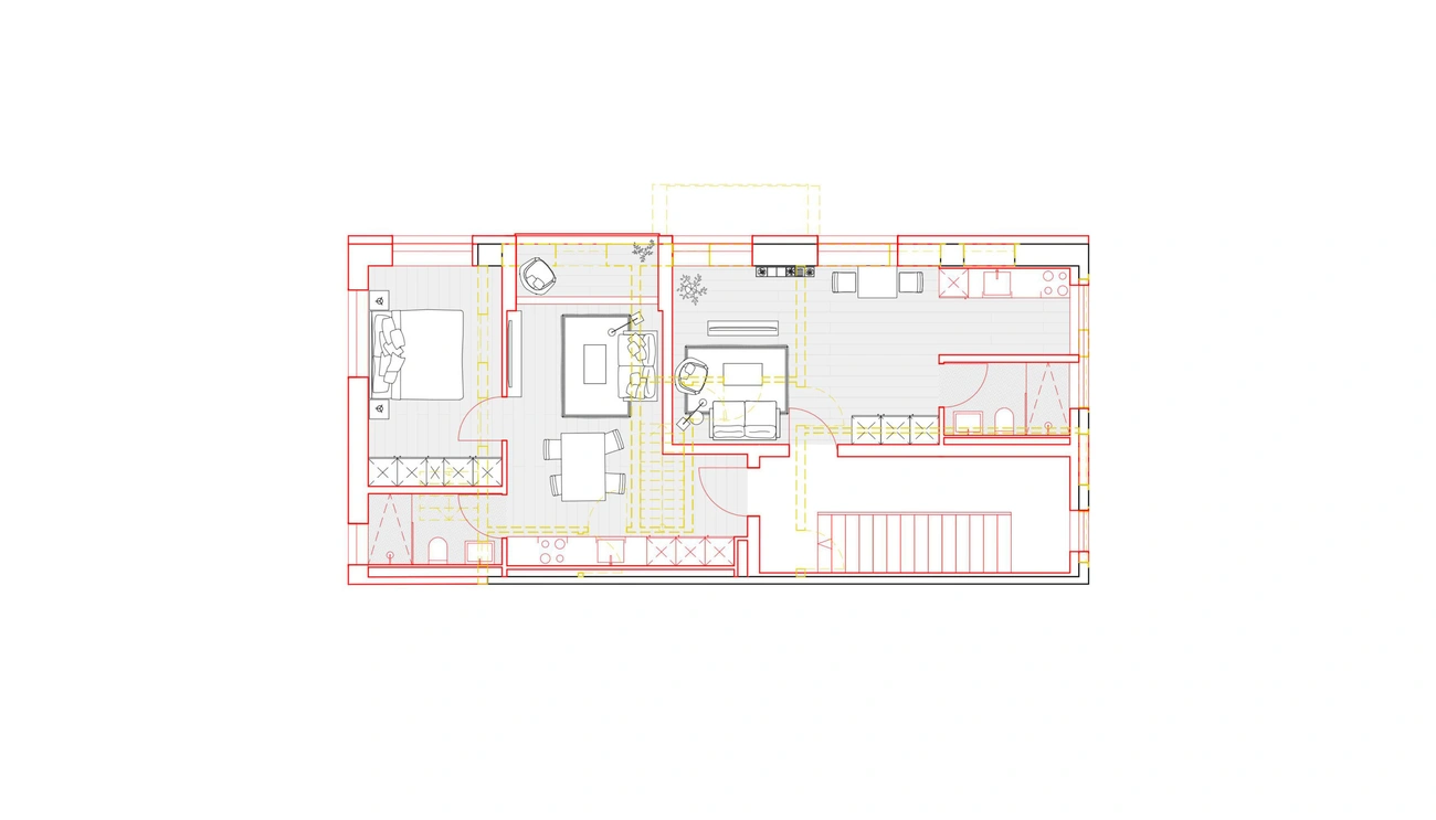
In der Kernzone von Fällanden wird ein weiterer Bau der Konstantin Architektur AG entstehen. Das zweigeschossige Wohnhaus bietet mit einem vielfältigen Wohnungsmix von 2.5 bis 4.5 Zimmern neuen Wohnraum für unterschiedlichste Bedürfnisse. Während an die Erdgeschosswohnungen grosszügige Terrassen anschliessen, bieten die oberen Geschosse, durch in den Wohnraum eingeschobene Loggien, attraktive Aussenräume.
Die Wahl von ortstypischen Materialien und Farben übersetzt die Identität der traditionellen Umgebung in eine moderne Bauweise.
Deutsch
Deutsch
English
Français
Italiano