Skip to content
Kompetenzen
Immobilienberatung
Nachhaltigkeitsberatung
Machbarkeitsstudien
Projektplanung
Visualisierung
Projekte
Alle
Neubau
Umbau
Über uns
Profil
Team
Büro
Karriere
Kontakt
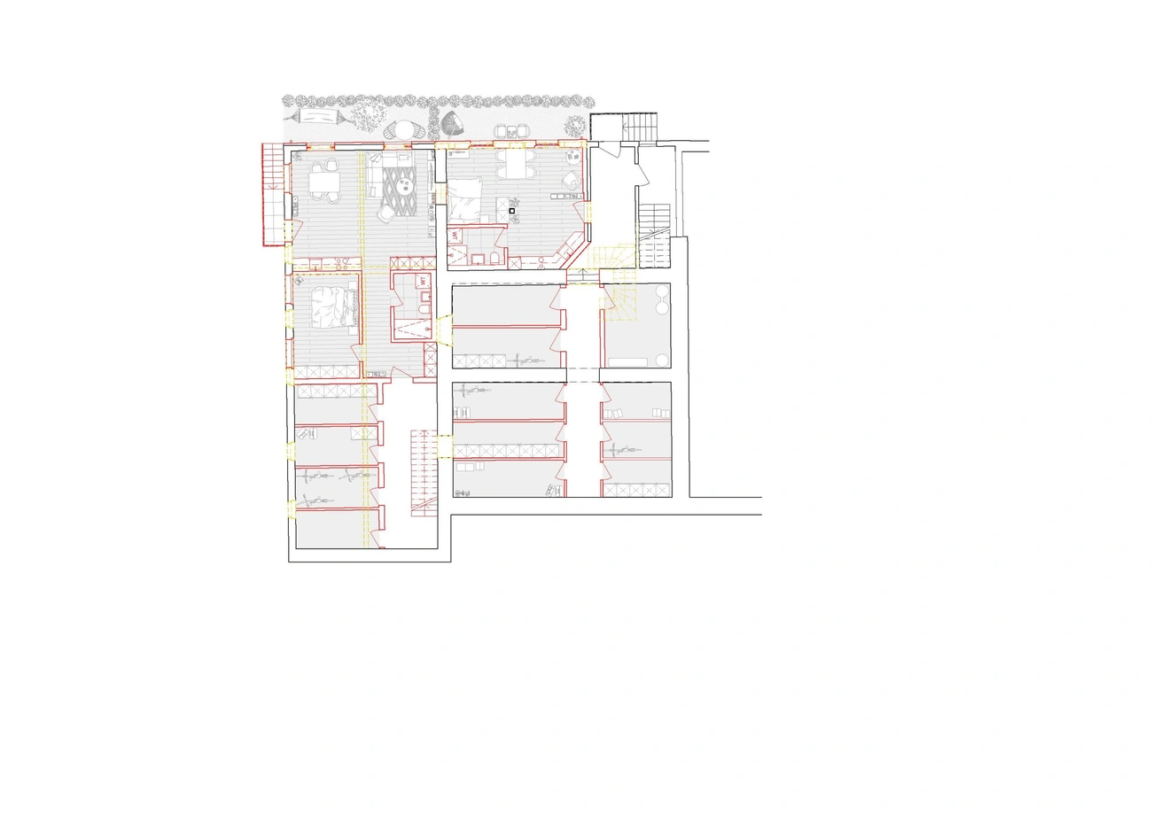
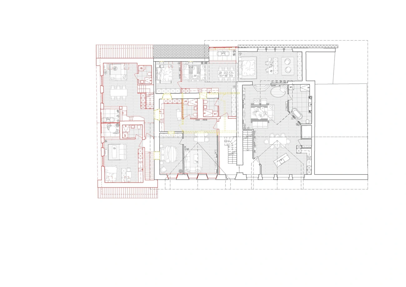
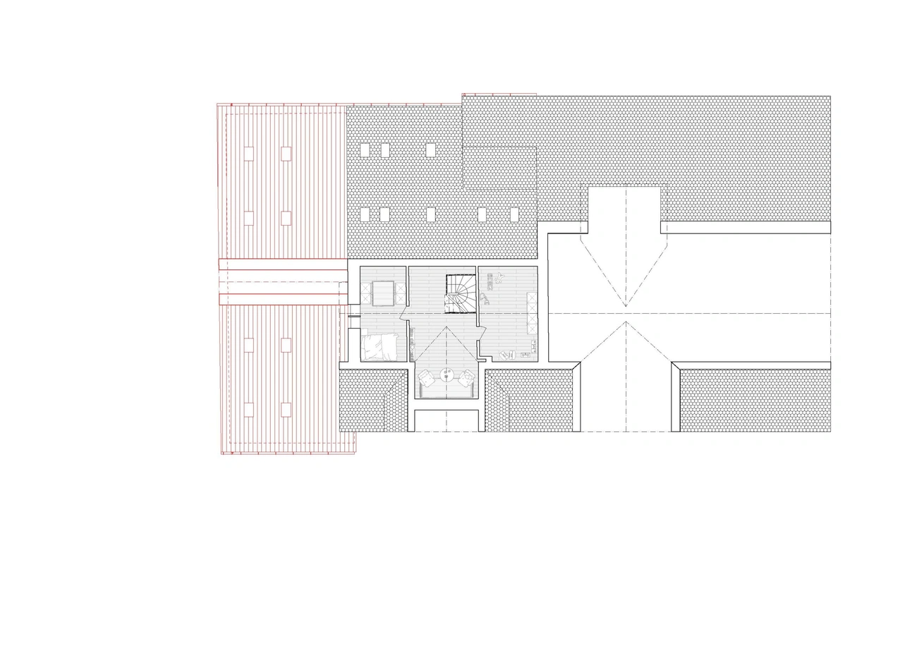
Umbau MFH Läufelfingen
Details zum Projekt
Baujahr:
2024
Auftrag:
Umbau
Typ:
Wohnen
Klasse:
MFH
Lage/Adresse:
Läufelfingen
Auftragsart:
Direktauftrag
Zone:
K 2
Aktuelle Sprache
Deutsch
Alle Sprachen
Deutsch
English
Français
Italiano