Sensible Eingriffe an einer anspruchsvollen Lage
An verschiedenen Liegenschaften in Altstädten führen wir Umbauten, Ausbauten von Dächern oder energetische Anpassungen durch.
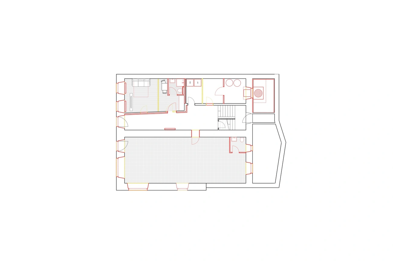
Das Reihenhaus in der Altstadt von Laufenburg wurde umgebaut. Es ist ein typisches Altstadthaus im Standard des letzten Jahrhunderts. In diesem Totalumbau galt es erstmalig eine Heizung einzubauen. Die unökologischen, nachinstallierten Elektroheizer wurden durch eine Luft-Wärmepumpe ausgetauscht. Diese versorgt nun zentral alle Wohneinheiten. Neue Holzfenster erhöhen die Dichtigkeit.
In allen Wohnungen wurden die Sanitär- und Elektroleitungen saniert.
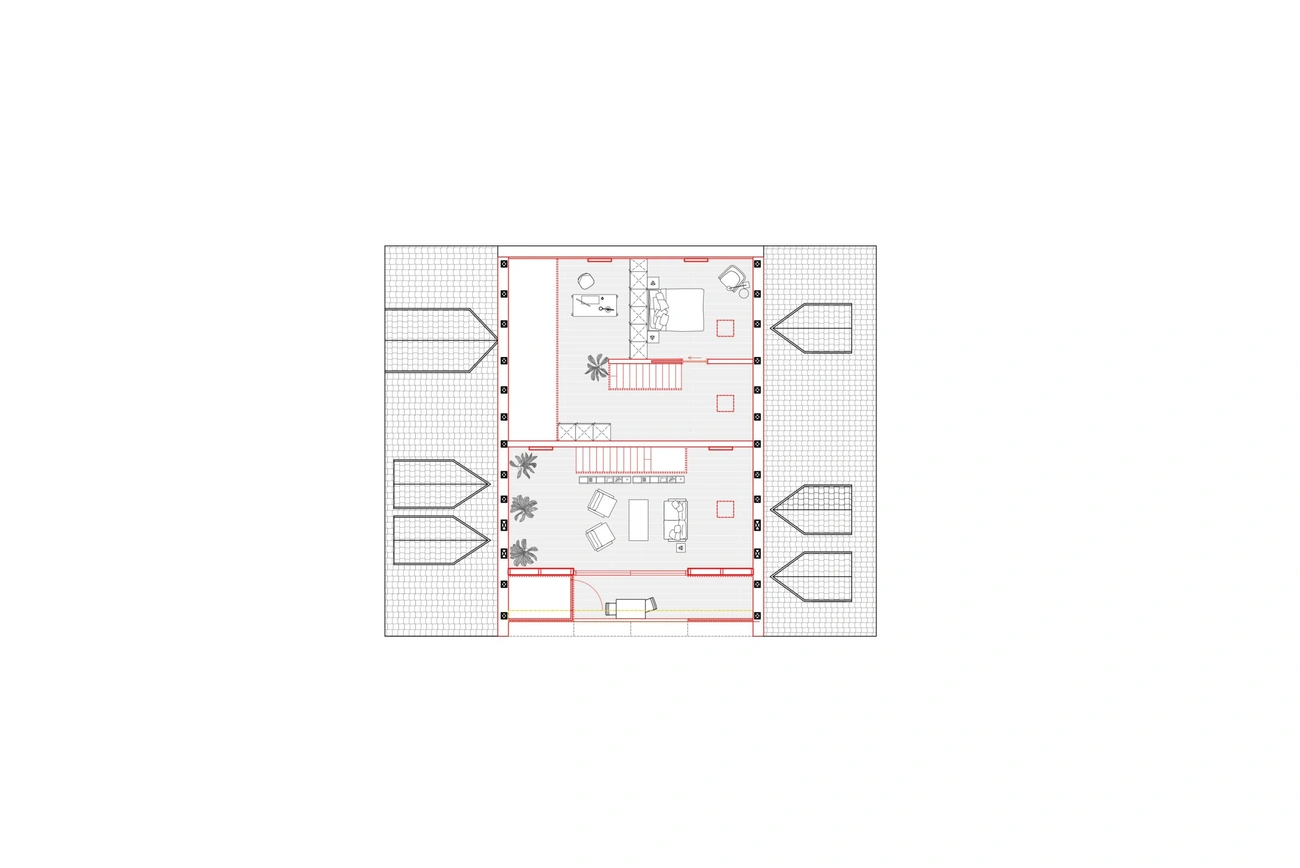
Das Dachgeschoss wurde ausgebaut und teilt sich in vier Wohnungen auf. Zwei davon sind mit einer Galerie über zwei Geschosse verbunden. Die westliche Giebelseite wird nach Fertigstellung eine hölzerne Loggia aufweisen.
Deutsch
Deutsch
English
Français
Italiano