Das Projekt befindet sich in Liestal, einer Gemeinde im Kanton Basel-Landschaft.
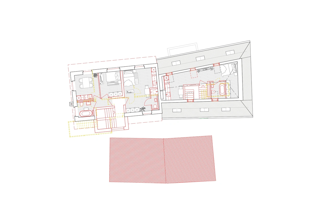
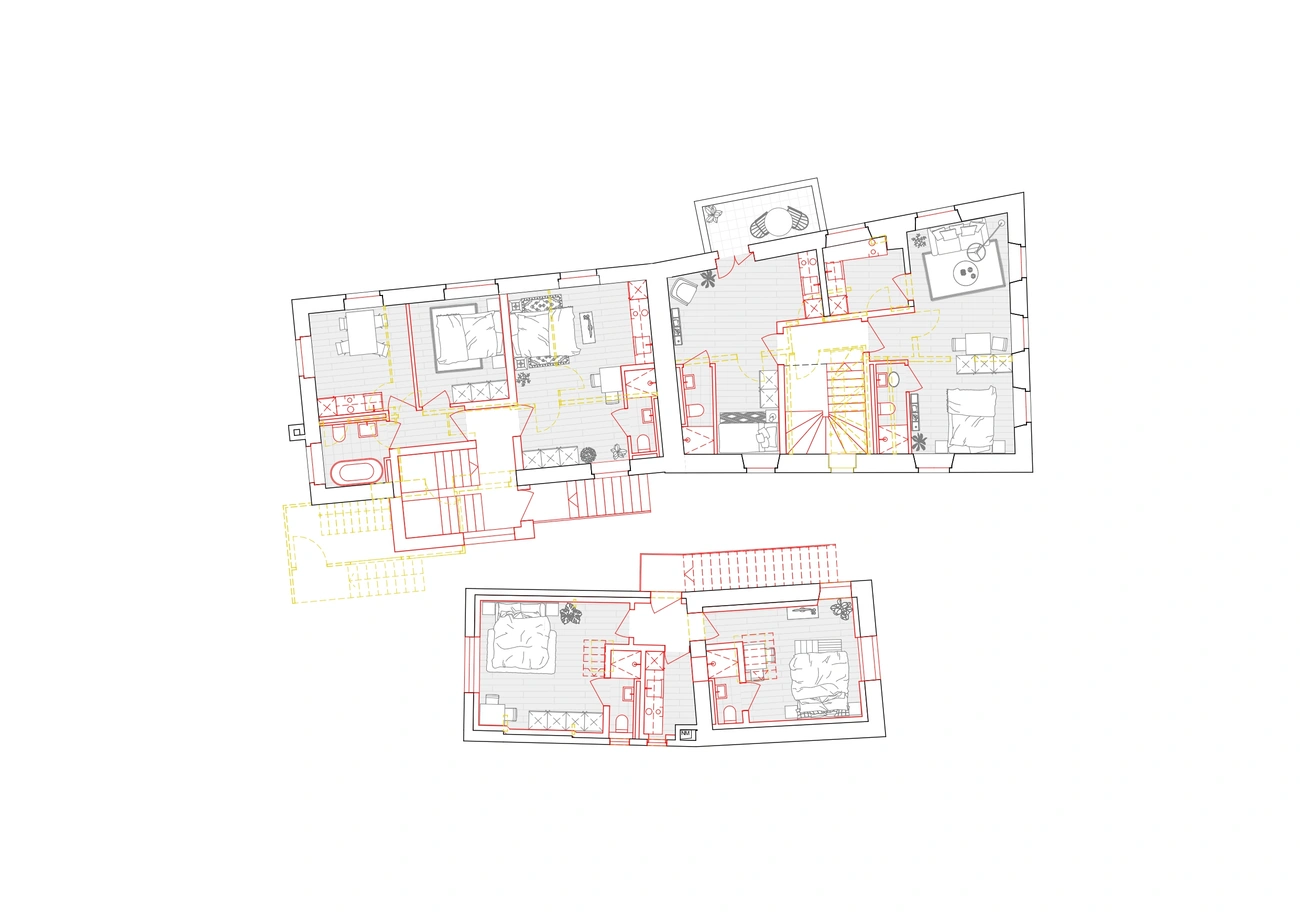
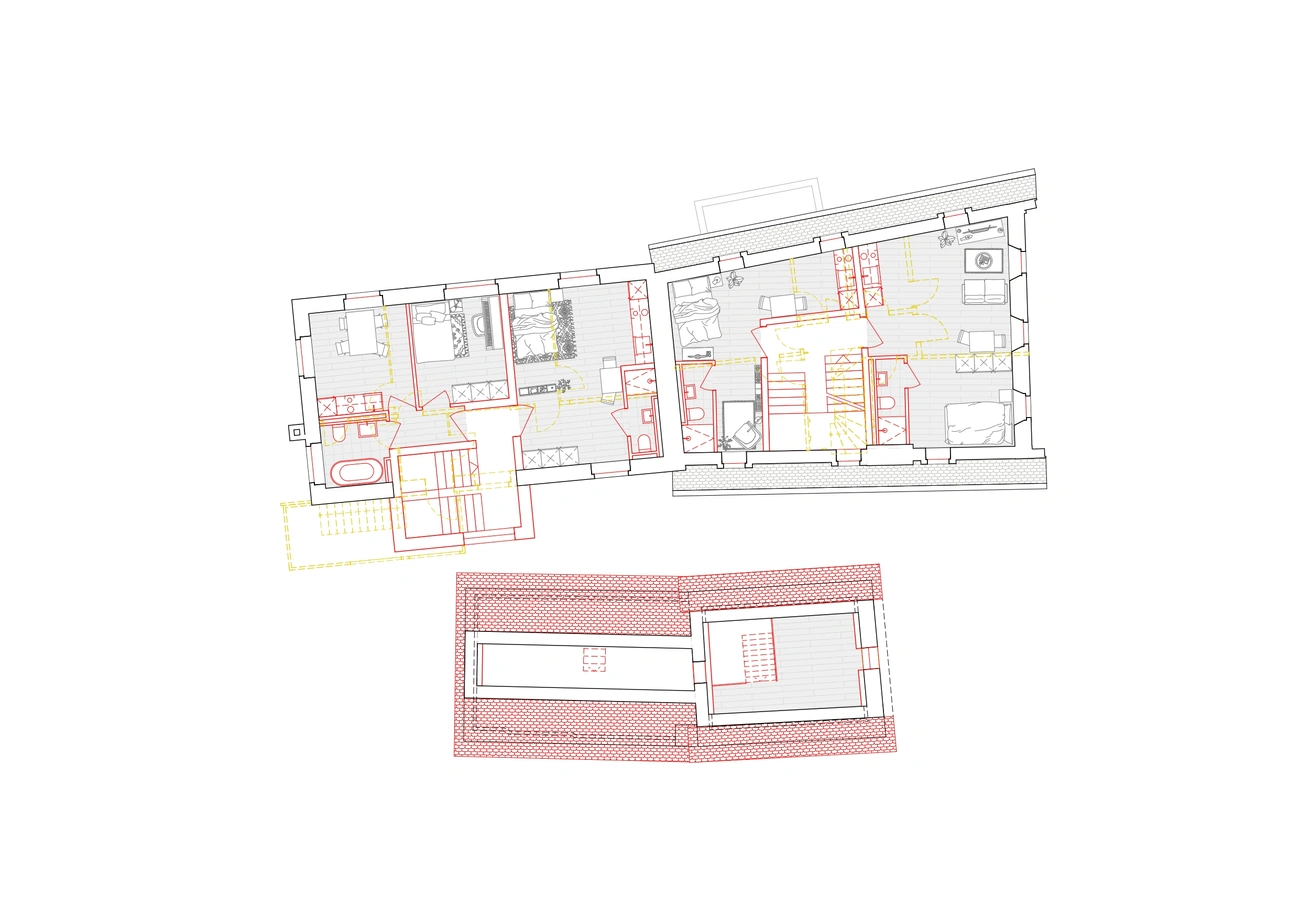
Auf der Parzelle befinden sich ein viergeschossiges langes Gebäude und daneben ein dreigeschossiges kleines Gebäude. Innerhalb des Gebäudeensembles wurden 14 Wohnungen und 2 Büros umgebaut. Zusätzlich wurden ein neues Treppenhaus und mehrere Gauben angebaut. Die beiden Gebäude befinden sich in der Kernzone, in unmittelbarer Nähe zum Zentrum.
Die Nähe zum Zentrum zeigt sich auch im Farb-und Materialkonzept. Jedes Gebäude hebt sich in seiner Farbigkeit und die der Fensterläden ab. Zudem unterscheidet sich jedes Gebäude in der Putzstruktur. Drei Dächer wurden saniert und mit kernzonenüblichen naturroten Biberschwanzziegeln eingedeckt. Die neuen Gauben passen sich in Kupfer der gesamten Farbgebung an.
Deutsch
Deutsch
English
Français
Italiano