Dieses Grundstück befindet sich an der Uetlibergstrasse. Eine extrem zentrale Lage mit einer Zug-linie vor der Haustür, die in 5 Minuten zum Hauptbahnhof fährt. Das Haus ist ein Reihenhaus, das 4 Treppen innerhalb desselben Gebäudes integriert, aber 4 verschiedene Eigentümer hat.
Aufgrund der Tatsache, dass unser Projekt ein integraler Bestandteil eines Gebäudes ist, an das weitere drei Häuser angeschlossen sind, und ein weiteres Gebäude, das gleich ist, muss das Projekt als Teil eines größeren Gebäudes betrachtet werden. Aus diesem Grund wurde die Fassade beibehalten, jedoch energetisch saniert und alle Fenster unter Beibehaltung der bisherigen Ästhetik saniert.
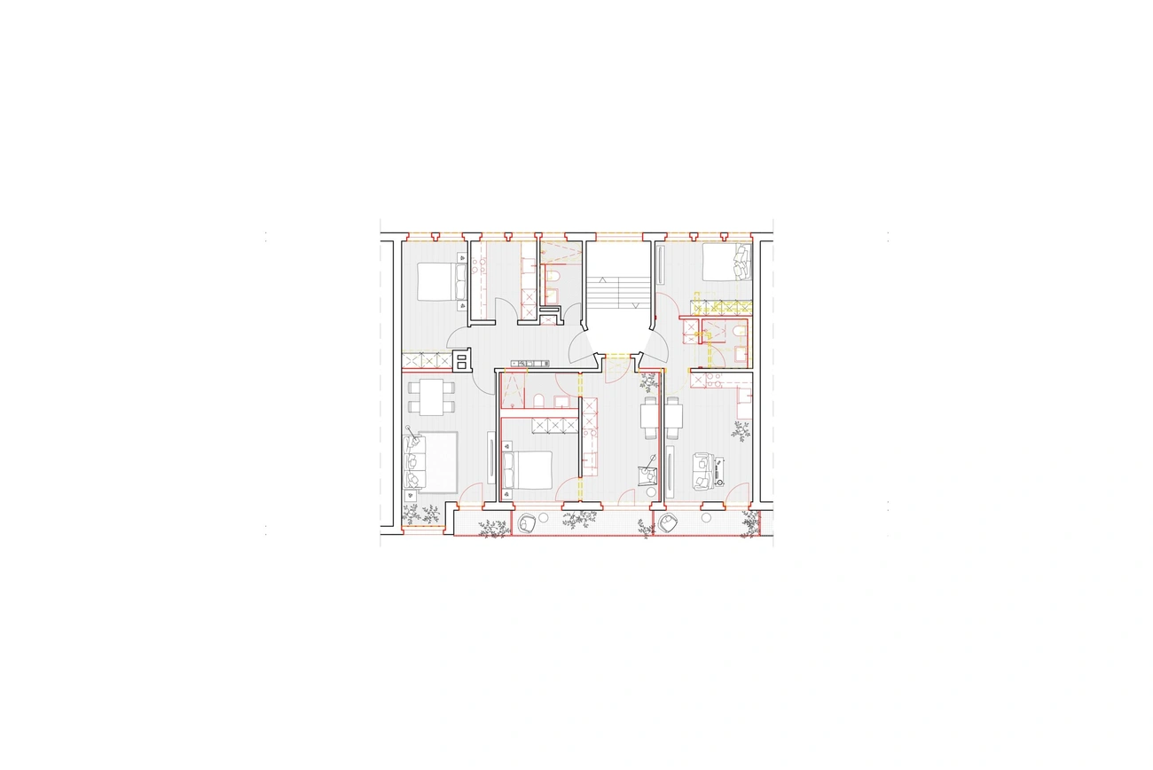
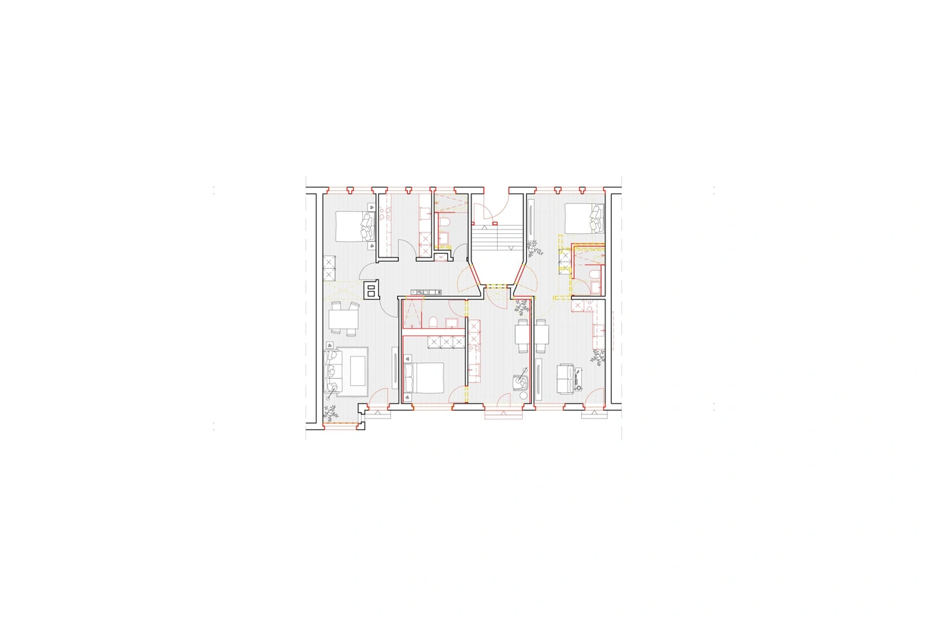
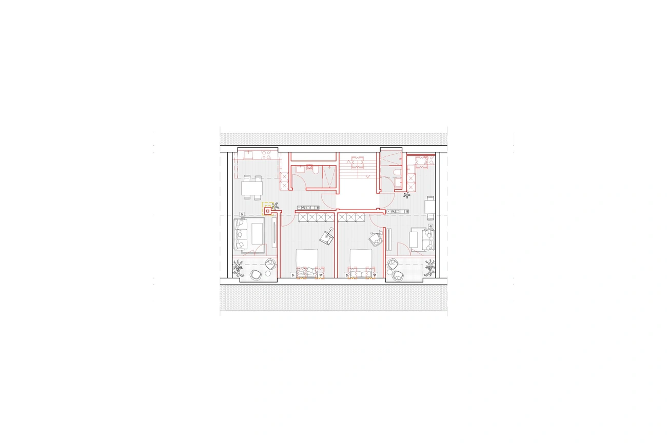
Dennoch wird das Innere baulich verändert. Aus einem Zweispänner wird ein Dreispänner, wobei es vor allem darum geht, einen Grundriss zu entwerfen, der möglichst wenig Lärm von der sehr lauten Bahnstrasse absorbiert. Aus diesem Grund öffnet sich der Grundriss zum hinteren Teil, wo die grüne Landschaft im Vordergrund steht.
Die Materialität ergibt sich aus dem Kontext. Die Idee war, die Essenz des Gebäudes intakt zu halten, um es zu integrieren. Dennoch wird das Gebäude mit anderen Farben als seine Nachbarn arbeiten, um sich von diesen abzugrenzen. Dies geschieht, um seine Individualität zu betonen und gleichzeitig die gleiche Sprache wie die Gebäude auf beiden Seiten zu haben.
Deutsch
Deutsch
English
Français
Italiano