Das Projekt befindet sich an der Mühlackerstrasse 1+3 in Fahrwangen, Bezirk Lenzburg, Kanton Aargau.
Die bestehende Ölheizung wird rückgebaut und durch eine Wärmepumpe mit Erdwärme ersetzt.
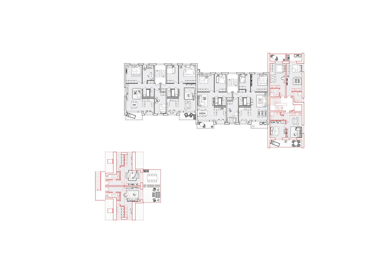
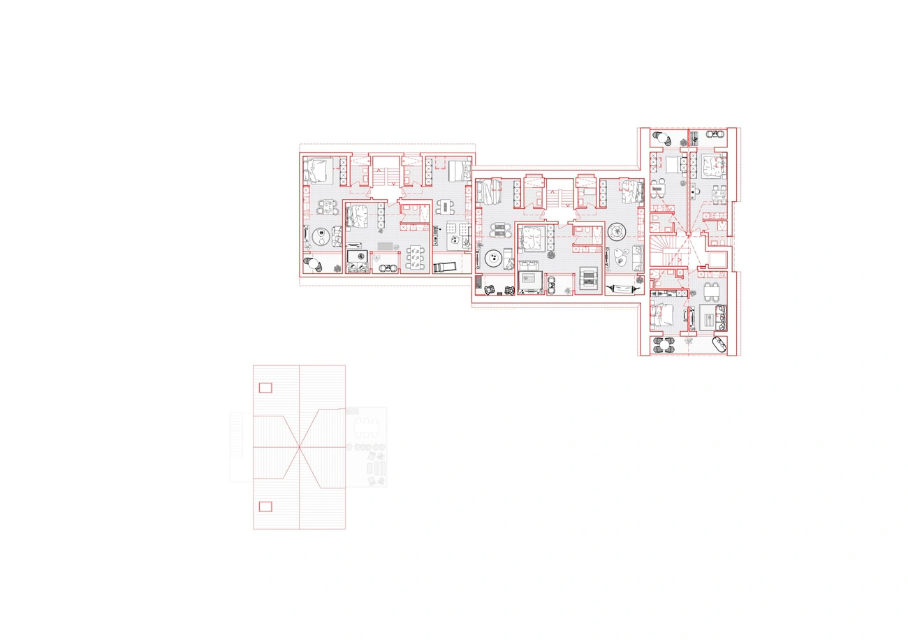
Das Mehrfamilienhaus mit den beiden Hausnummern 1 und 3 wird um ein Geschoss mit Satteldach aufgestockt. An dessen östliche Fassade wird ein Anbau mit der selben Geschossanzahl und Dachform angedocht, beide Bauten ergeben zusammen ein T-förmiges Gebäude. Hinzu kommt ein freistehender 2-geschossiger Neubau mit 4 Wohneinheiten.
Die bestehende Tiefgarage wird erweitert und mit einer neuen Einfahrt versehen.
Das MFH bestehend aus Bestand und Anbau wird verputzt und in einem hellen Beigeton gestrichen. Die bestehenden Balkongeländer bleiben in Sichtbeton, die neuen werden als Staketengeländer ausgeführt.
Der kleine Neubau erhält eine Holzfassade.
Deutsch
Deutsch
English
Français
Italiano