An verschiedenen Liegenschaften in Altstädten führen wir Umbauten, Ausbauten von Dächern oder energetische Anpassungen durch.
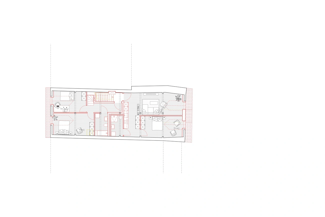
Bei dieser Altstadtliegenschaft handelt es sich um ein Reihenhaus in Laufenburg. Mit einem Totalumbau wird das Gebäude an die aktuellen Bedürfnisse angepasst: 9 moderne Wohneinheiten werden erstellt und die Sanitär- und Elektroleitungen saniert. Auch die unökologischen nachinstallierten Elektroheizer werden durch eine Luft-Wärmepumpe ersetzt. Zudem werden die Fenster erneuert und die Fassade saniert.
Deutsch
Deutsch
English
Français
Italiano