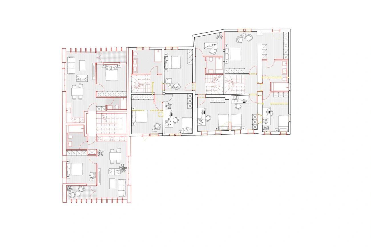
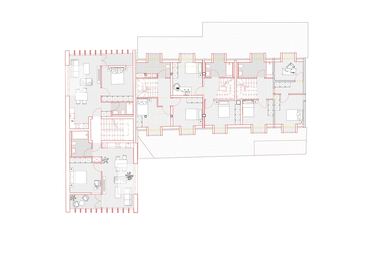
In der Kernzone von Rorbas bauen wir ein kommunal geschütztes Bauernhaus um. Im Bauernhaus entstehen drei grosszügige Reihenhäuser für Familien. Der Umbau spielt mit den gegebenen strukturellen Elementen des Bauernhauses und gibt ihm einen eigenen aber typischen Charakter.
Die Scheune wird durch einen Neubau mit sechs Wohneinheiten ersetzt. Dieser Neubau nimmt die traditionellen Elemente der Scheune auf. Durch die Neuinterpretation verbinden sich in gelungener Weise Tradition und Moderne.
Deutsch
Deutsch
English
Français
Italiano